Our Favorite Listing: A Celeb Favorite Co-Op In The Greenwich Village

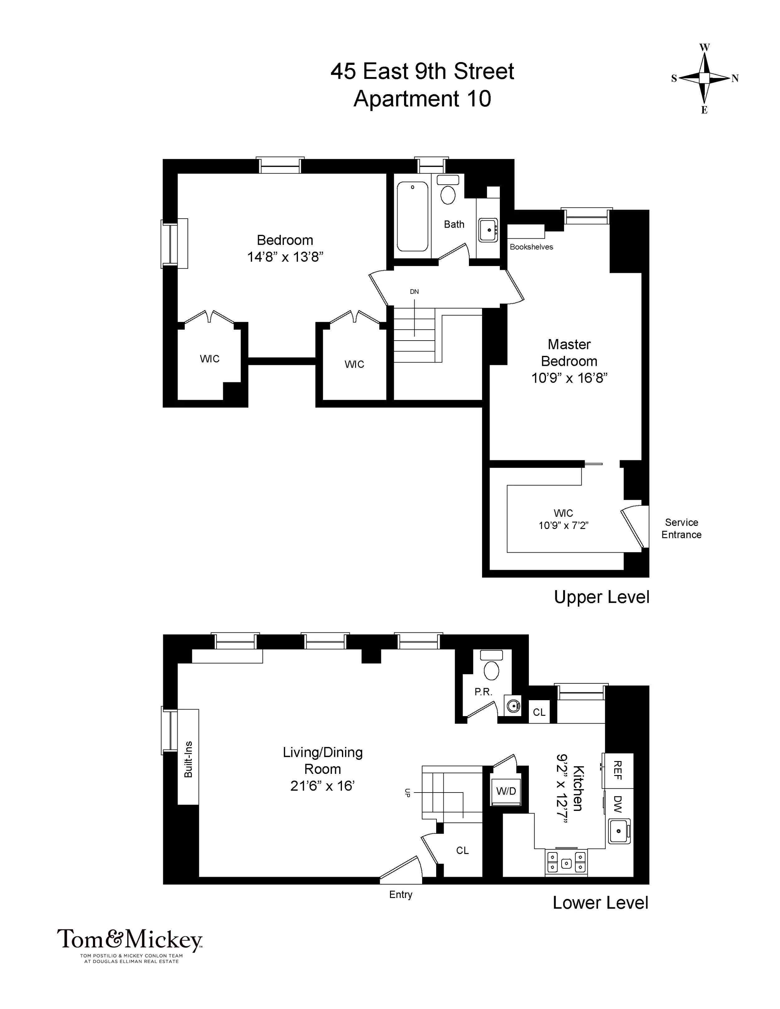
Our favorite listing this week is 45 East 9th Street, 10 in the Greenwich Village, currently asking for $2,195,000. The residence is two bedrooms and 1.5 bathrooms.

29-45TenantsCorp.45East9thStreet10-GreenwichVillageNewYork_Tom_Postilio_DouglasElliman_Photography_83420655_high_res.jpg

Nestled between University Place and Broadway, this coveted co-op building sits in the heart of Greenwich Village and has been sought after by many celebs such as Jonathan Adler, ‘Sex and the City’ writer Candace Bushnell and actor Chris Noth (the intriguing Mr. Big). In an ever trendy area, this original 1920s prewar apartment has been redesigned to catch the modern home buyer.

29-45TenantsCorp.45East9thStreet10-GreenwichVillageNewYork_Tom_Postilio_DouglasElliman_Photography_83420523_high_res.jpg

Comprised of two bedrooms and one and a half bathrooms, the detailed renovation is screaming chic; from the kitchen’s marble countertops and the marble-clad bathroom to the endless brass fixtures and sleek cabinetry.

Floor Plan - 45 East 9th Street #10.jpg

The duplex offers 10’ ceilings and built-in bookcases for that added touch of character. Although Washington Square Park is mere steps away, the building features its own private gardens (seen from the living/dining rooms) and a landscaped common roof deck. The charm here is truly timeless!

Douglas Elliman’s Tom Postilio and Mickey Conlon are the listing agents.

Have a listing you think should be featured contact us or email at Jeremy@offthemrkt.com to tell us more! Follow Off The MRKT on Twitter and Instagram, and like us on Facebook.